top of page

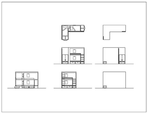
DORM
BUNK
DESIGN
The Shelter's sleeping arrangements were a particularly large focus of my thesis. The challenge was in providing young LGBTQIA residents with a group living space that can equally serve a resident's need for privacy and the openness required for monitoring their safety. Key to achieving this was the design of L shaped bunks spaced strategically apart to minimize direct views from bunk to bunk.








SKETCHES AND DRAWINGS
bottom of page


